Loading...
澔享會議中心 | 30~100人捷運南京復興站會議空間出租 、台北中山區、活動場地、研討會、講座、法說會、股東會、記者會、產品發表、課程講座、說明會、分享會、教育訓練、讀書會、招商說明會、工商登記、地址登記、BNI開會、扶輪社、青商會JCI
Previous
Next
首頁
場地租借
最新消息
交通資訊
立即預約
立即預約
立即預約
News 最新消息
耶魯廳 | 場地圖
場地實景
L
場地實景
場地實景
L
哈佛廳 | 場地圖
場地實景
場地實景
場地實景
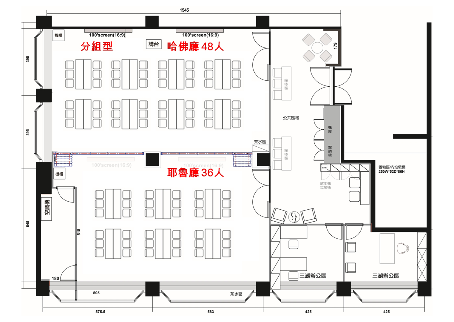
耶魯廳+哈佛廳 | 場地圖
場地實景
場地實景
場地實景
L
服務電話: 02-7752-2292
Email:
[email protected]
地點 : 台北市中山區復興北路164號7F
(南京復興站8號出口左轉100公尺)
上班時間 : 週一 ~ 週五 上午09:00 AM - 下午18:00
(假日除外)
ShareBody資訊站